0
  • Acheter De l'ancien
  • Louer
Dans un rayon de
Budget
Mini
Maxi

    Faites estimer votre bien par un professionnel

    Estimer votre bien

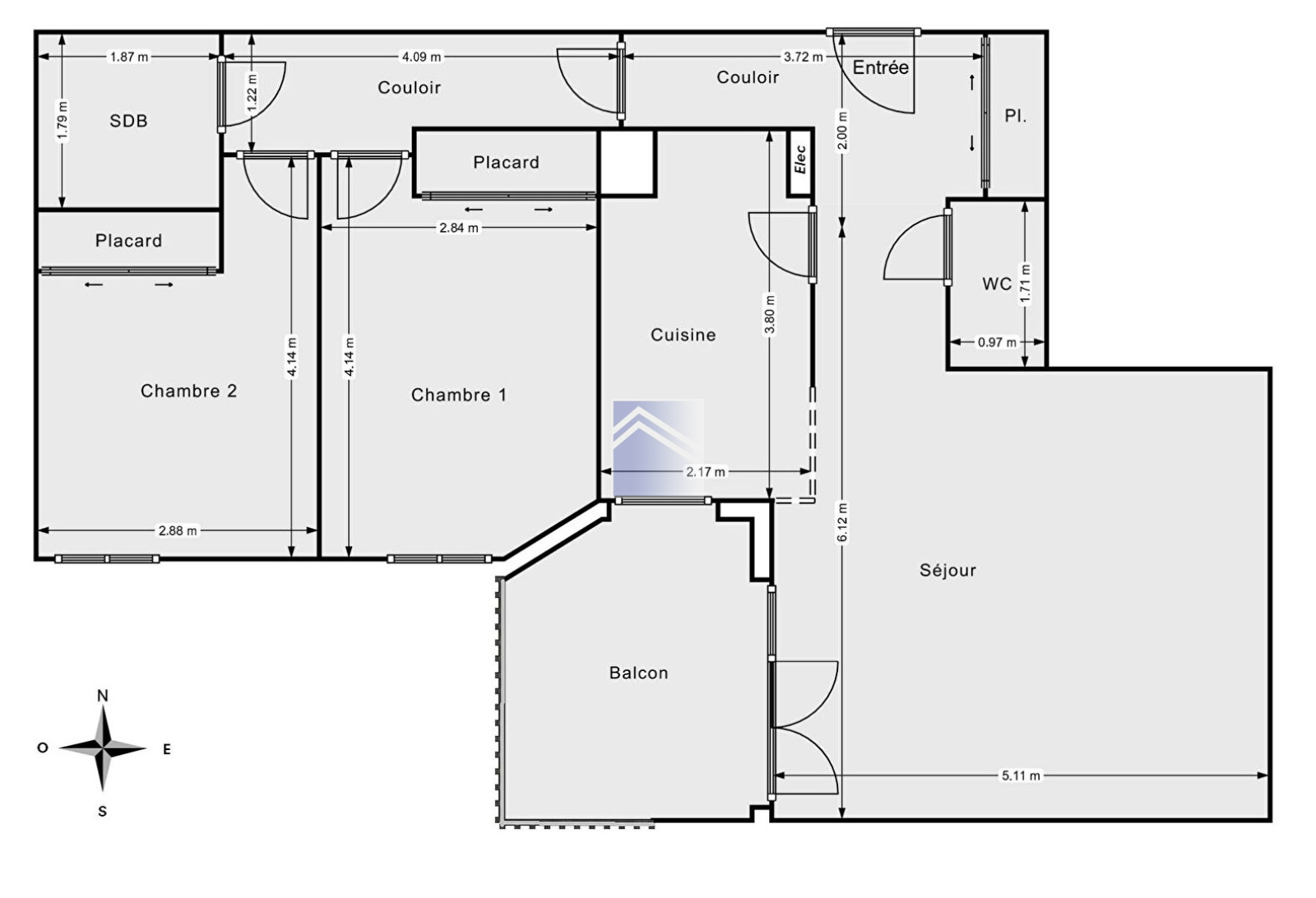
    Courbevoie Gare - 3 pièces 69 m2 - terrasse

    Courbevoie (92400)
    Réf : 343

    Quartier Marceau- Coeur de Ville, a 2 minutes de la Gare de Courbevoie et proche toutes commodités. Copropriété standing de 2003, sécurisée et bien entretenue; avec jardins et terrain de pétanque. Très beau T3 au clame et sans vis a vis situé au 3ème étage d'un immeuble avec ascenseur. Il est composé d'une entrée avec placards, d'un séjour lumineux exposé Ouest donnant sur une terrasse de 7m2 exposé Sud/Ouest, d'une cuisine semi-ouverte aménagée et équipée, 2 belles chambres, une salle de bains et toilettes séparées . Une cave complète ce bien. Place de parking en sus.

    découvrir le bien
    Prix du bien 532 000 €
    Pièce(s) 3
    Chambre(s) 2

    Caractéristiques du bien

    Caractéristiques Valeurs
    Code postal 92400
    Surface habitable (m²) 69 m²
    Surface loi Carrez (m²) 68,93 m²
    Nombre de chambre(s) 2
    Nombre de pièces 3
    Etage 3
    Ascenseur OUI
    Vue jardin / cour
    Nb de salle de bains 1
    Cuisine Aménagée
    Type de cuisine Equipée
    Mode de chauffage Electrique
    Type de chauffage Radiateur
    Format de chauffage Individuel
    Interphone OUI
    Balcon OUI
    Cave OUI
    Exposition Ouest
    Année de construction 2003

    Infos financières

    Caractéristiques Valeurs
    Prix de vente 532 000 €
    Les honoraires d'agence seront intégralement à la charge du vendeur  
    Charges 175 €
    Taxe foncière annuelle 977 €

    Bilans énergétiques

    DPE GES
    Ce bien vous intéresse ?
    Fieldset par défaut
    Fieldset par défaut
    Validation

    * Champs obligatoires

    Contacter l'agence
    Validation
    Les informations recueillies sur ce formulaire sont enregistrées dans un fichier informatisé par La Boite Immo agissant comme Sous-traitant du traitement pour la gestion de la clientèle/prospects de l'Agence / du Réseau qui reste Responsable du Traitement de vos Données personnelles. La base légale du traitement repose sur l'intérêt légitime de l'Agence / du Réseau. Elles sont conservées jusqu'à demande de suppression et sont destinées à l'Agence / au Réseau. Conformément à la loi « informatique et libertés », vous disposez des droits d’accès, de rectification, d’effacement, d’opposition, de limitation et de portabilité de vos données. Vous pouvez retirer votre consentement à tout moment en contactant directement l’Agence / Le Réseau. Consultez le site https://cnil.fr/fr pour plus d’informations sur vos droits. Si vous estimez, après avoir contacté l'Agence / le Réseau, que vos droits « Informatique et Libertés » ne sont pas respectés, vous pouvez adresser une réclamation à la CNIL. Nous vous informons de l’existence de la liste d'opposition au démarchage téléphonique « Bloctel », sur laquelle vous pouvez vous inscrire ici : https://www.bloctel.gouv.fr Dans le cadre de la protection des Données personnelles, nous vous invitons à ne pas inscrire de Données sensibles dans le champ de saisie libre.
    Ce site est protégé par reCAPTCHA, les Politiques de Confidentialité et les Conditions d'Utilisation de Google s'appliquent.